• Home
  • Location
  • Referenze
  • C'era una volta
  • Spazi disponibili
  • Contatti

Area generale

La modularità dell’immobile permette una libera suddivisione degli spazi
che, grazie alle possibilità di personalizzazione, risulteranno
maggiormente identificabili. Sono previsti ampi parcheggi.

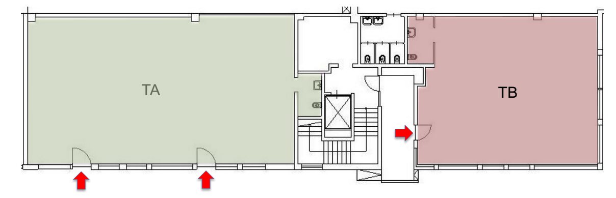
Spazi disponibili

Piano Terra

TA160 mq. con vetrine, ottima visibilità. Soffitto H. 330. Adatto a studio o ufficio con esposizione. Riscaldamento gas con contatore autonomo. 5 posti auto (altri a richiesta).

TB115 mq. con vetrine, ottima visibilità. Soffitto H.300. Adatto a studio o ufficio con esposizione. Riscaldamento gas con contatore autonomo. 4 posti auto (altri a richiesta).

Spazi disponibili

Piano Primo


1AOpen Space 163 mq, ampie vetrate. Riscaldamento gas con contatore autonomo. Ascensore. 5 Posti auto (altri a richiesta).

1BOpen Space 135 mq, ampie vetrate. Riscaldamento gas con contatore autonomo. Ascensore. 4 posti auto (altri a richiesta).

Immobrixen OHG snc - Via Vittorio Veneto 73 - 39042 Bressanone(BZ) - P.I.:00124240219
Siti Premium